ADU Design
Desert Architect
Accessorize Your Space
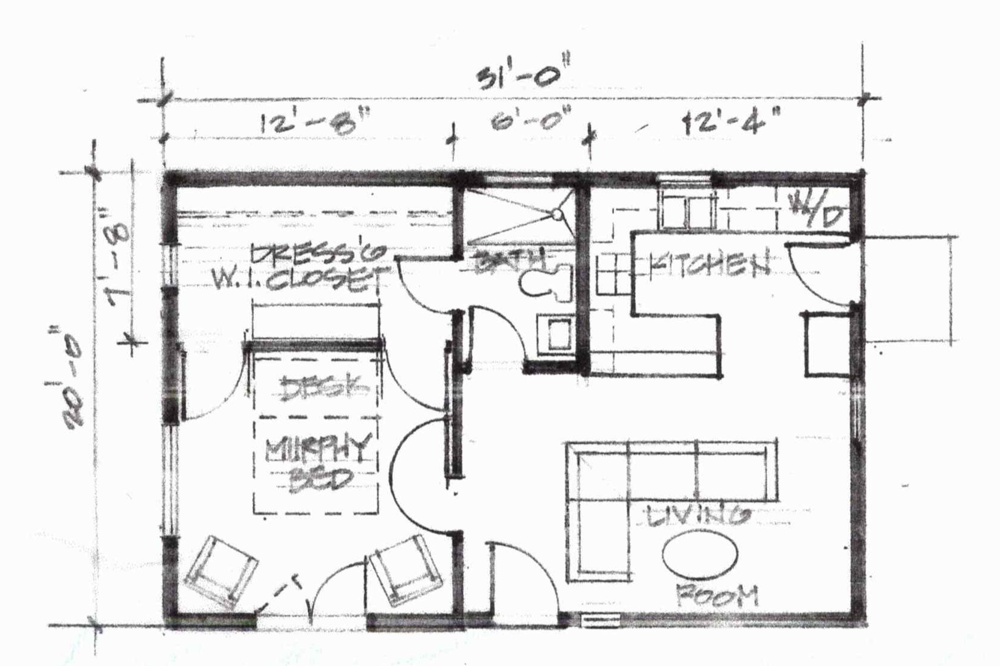
You might be dreaming of a charming guest house for visiting family and friends, a comfortable mother-in-law apartment for extended family, or a rental unit that provides additional income. Perhaps you need a dedicated space for your hobbies, a detached garage for your prized vehicles, a pool house for entertaining, or a tranquil greenhouse to nurture your green thumb. Whatever your needs, we can design a functional and beautiful space that enhances your desert lifestyle.
At Desert Architect, we design Accessory Dwelling Units and Accessory Units that seamlessly integrate with your main residence while offering privacy and independence. We understand the unique considerations involved in designing these types of structures, from navigating local regulations to maximizing functionality and aesthetic appeal. We'll work closely with you to understand your vision, ensuring that your ADU or Accessory Unit perfectly complements your existing home and enhances your desert property.
Ready to explore the possibilities? Contact us to discuss how we can help you create the perfect ADU or Accessory Unit for your desert oasis.


Architectural Services
Learn about our 5 stage process to help you design and build your dream home.
Site Selection Services
Learn about our process to help you select the best property for your future home.
Architectural Style Guide
See our homes in all the desert architectural styles you can choose from for your home.
Arizona Climate Guide
Learn about the 4 different desert climates of Arizona to help you select which is right for you.
Lets begin
Ready to start your Journey
The Desert Architect team is here to help you design your ADU or Accessory Unit.